Pforzheim:
Attraktives Mehrfamilienhaus mit 18 Wohn- und 1 Gewerbeeinheit in Pforzheim
Objekt-Nr.: 20250729ra




































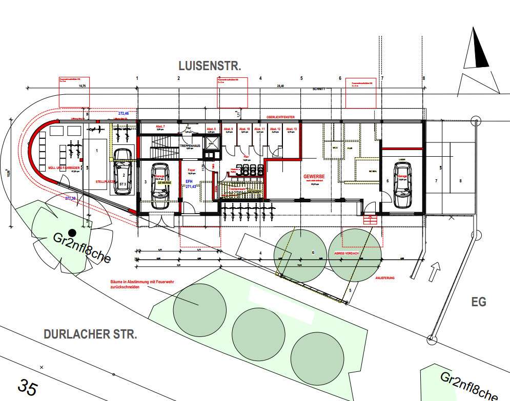
Erdgeschoss

Untergeschoss

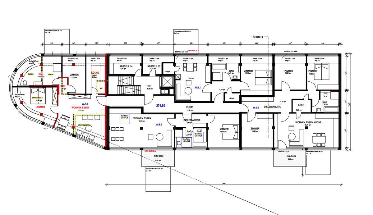
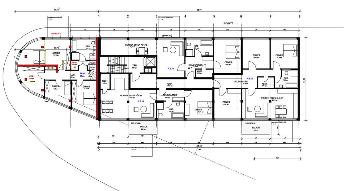
1. Obergeschoss

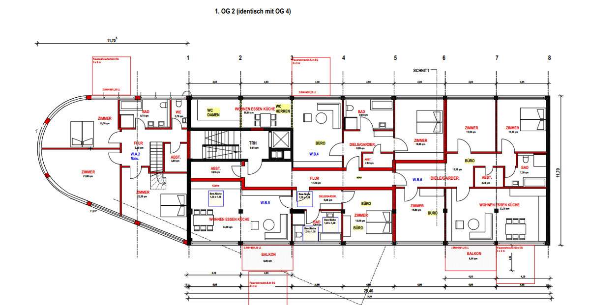
2. Obergeschoss

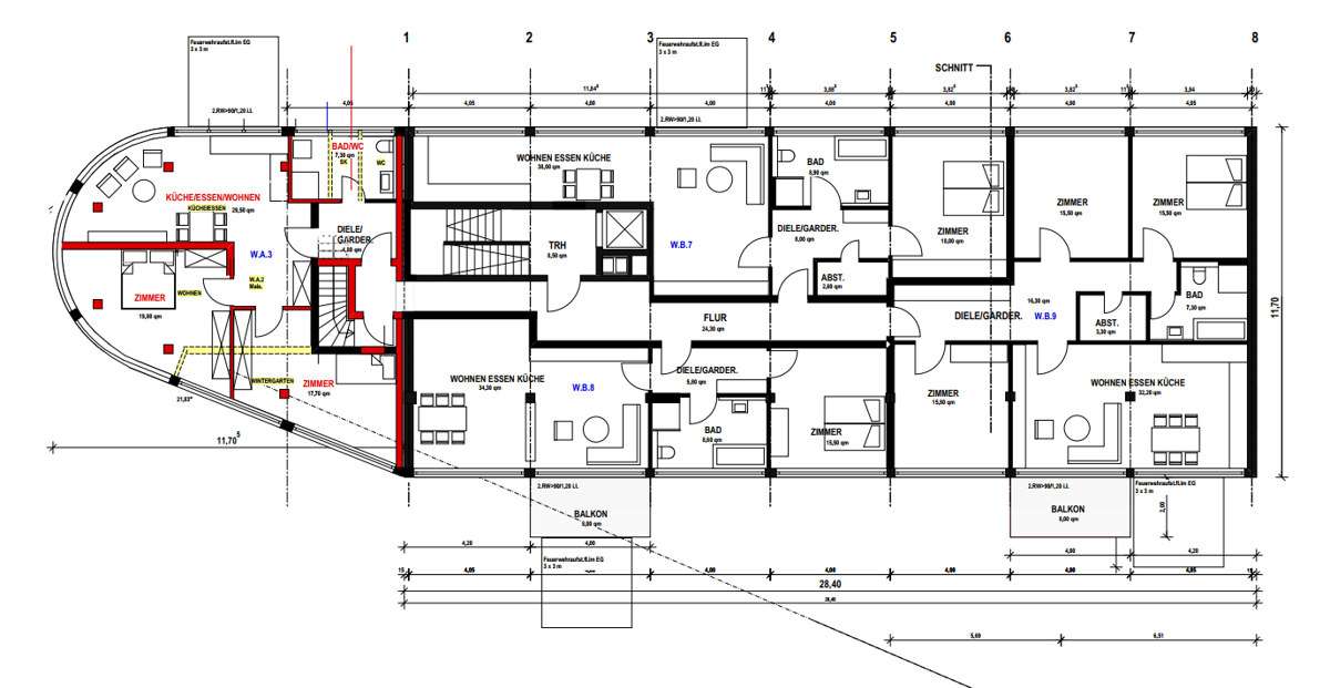
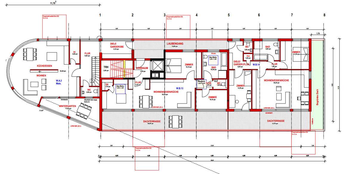
3. Obergeschoss

4. Obergeschoss

Penthouse

Ansicht Nord

Ansicht Süd

Querschnitt

Lageplan
















































Preis:
3.980.000 €
Baujahr:
1965
Dieses attraktive Anlageobjekt in zentraler Lage von Pforzheim vereint modernes Wohnen und praktisches Gewerbe unter einem Dach. Auf einem ca. 600 m² großen Grundstück befindet sich das ehemalige Bürogebäude, das im Rahmen eines Umnutzungsantrags umfassend saniert und im Jahr 2020 zu einem hochwertigen Wohn- und Geschäftshaus umgebaut wurde.
Das Gebäude bietet eine vermietbare Fläche von insgesamt ca. 1.645,20 m² und umfasst 19 Einheiten – davon 18 moderne Wohneinheiten sowie eine Gewerbeeinheit, die derzeit von einem KFZ-Betrieb genutzt wird. Sämtliche Einheiten sind vollständig vermietet und garantieren eine solide Einnahmesituation.
Zur Ausstattung zählen eine Tiefgarage mit 10 Stellplätzen, zwei zusätzliche Garagen sowie ein Außenstellplatz im Erdgeschoss. Ein Aufzug ist vorhanden.
Historie & Modernisierung
• Ursprünglich 1965 als Bürogebäude errichtet
• Umnutzungsantrag 2016 genehmigt
• Umbau- und Sanierungsmaßnahmen abgeschlossen in 2020
• Erweiterung durch Anbau im Jahr 2019
• Vollständige Modernisierung und Umgestaltung zu einem Wohn- und Geschäftshaus
Vereinbaren Sie noch heute einen Besichtigungstermin!
Letzte Modernisierung/ Sanierung: 2020
Qualität der Ausstattung: gehoben
Grundstück ca.: 600 m²
Wohnfläche ca.: 1.645,20 m²
ausbaubare Wohnfläche: 110 m²
Mieteinnahmen p.a. (Ist): 210.132 €
Etagenanzahl: 5
Fahrstuhl: ja
Zustand: neuwertig
Heizung: Zentralheizung
Befeuerungsart: Fernwärme
Energieausweistyp: Verbrauchsausweis
Energieeffizienz-Klasse: C
Käuferprovision 3,57% inkl. MwSt.
Das könnte Ihnen auch gefallen

Altay & Özcelik Immobilien
Frau Rana Altay/ Altay & Özcelik Immobilien
Scheffelstr. 65
76135 Karlsruhe
Büro: +49 721 844985
Mobil: +49 171 3163161
Fax: +49 721 853487
Durlacher Straße 40
75172 Pforzheim
Baden-Württemberg





















































