Malsch:
Wohnen mit Garten – modernisierte 4-Zimmer-Wohnung in Malsch
Objekt-Nr.: 20251006

Hausansicht

Treppenhaus

Flur

Badezimmer

Gäste-WC

Schlafzimmer

Wohnzimmer

Küche

Esszimmer

Kinderzimmer

Garten

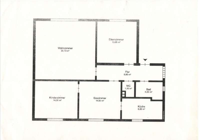
Grundriss Obergeschoss












Preis:
295.000 €
Wohnfläche ca.:
94,64 m²
Zimmeranzahl:
4
Willkommen in Ihrer Traumwohnung! Diese neuwertige 4-Zimmer-Eigentumswohnung im 1. Obergeschoss eines gepflegten 3-Parteien-Hauses in Malsch kombiniert modernen Wohnkomfort mit guter Raumaufteilung.
Beim Betreten erwartet Sie ein gepflegtes Badezimmer mit Badewanne und Tageslichtfenster. Ein separates Gäste-WC sorgt für zusätzlichen Komfort. Der Flur führt Sie zu einem flexibel nutzbaren Zimmer – perfekt als Kinderzimmer, Büro oder Gästezimmer. Das Herzstück der Wohnung ist das großzügige Wohnzimmer. Auf der linken Seite befinden sich die Küche mit modernen Einbauküche und Esszimmer, von hier aus errei-chen Sie ein weiteres helles Zimmer, ideal für individuelle Gestaltungsmöglichkeiten.
Die umfassende Renovierung (2024–2025) garantiert ein zeitgemäßes Wohnambiente mit guter Ausstattung. Ein besonderes Highlight ist der private Gartenanteil von ca. 200 m² – ideal für entspannte Stunden im Freien.
Wohnungstyp: Etagenwohnung
Etage: 1
Provisionspflichtig: ja
Provision: 3,57
Küche: Einbauküche
Anzahl Badezimmer: 1
Gäste-WC: ja
Garten: ja
Keller: ja
Letzte Modernisierung/ Sanierung: 2025
Qualität der Ausstattung: normal
Baujahr: 1967
Hausgeld: 250 €
Bezugsfrei ab: nach Vereinbarung
Heizung: Zentralheizung
Befeuerungsart: Öl
Energieausweistyp: Verbrauchsausweis
Energieeffizienz-Klasse: D
Alle Angaben nach bestem Wissen. Irrtum und Zwischenverkauf vorbehalten. Die Käuferprovision beträgt 3,57 % inkl. der gesetzlichen MwSt. von derzeit 19% aus dem Kaufpreis bei Nachweis/Vermittlung dieser Immobilie, fällig und zahlbar bei notariellem Kaufvertragsabschluss. Dieses Exposé ist eine Vorinformation, als Rechtsgrundlage gilt allein der notariell abgeschlossene Kaufvertrag.
Das könnte Ihnen auch gefallen

Altay & Özcelik Immobilien & Finanzdienstleistungen
Frau Rana Altay/Altay & Özcelik Immobilien und Finanzdienstleistungen
Scheffelstr. 65
76135 Karlsruhe
Büro: +49 721 844985
Mobil: +49 171 3163161
Fax: +49 721 853487
76316 Malsch
Karlsruhe
Baden-Württemberg

















































