Leimersheim:
freistehendes Dreifamilienhaus als Kapitalanlage
Objekt-Nr.: 2021-7

Hausansicht

Hausansicht

Straßenansicht

Rückansicht

Stellplätze










Grundriss UG

Grundriss EG

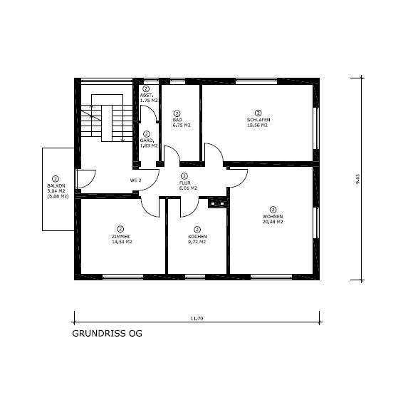
Grundriss OG

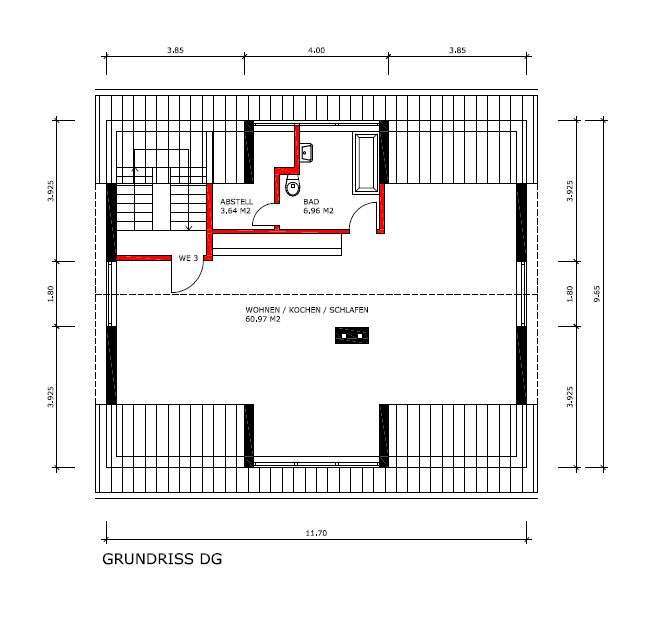
Grundriss DG


















Preis:
690.000 €
Wohnfläche ca.:
237,37 m²
Grundstück ca.:
345 m²
Zimmeranzahl:
9
Dieses freistehende Dreifamilienhaus in massiver Bauweise ist eine Kapitalanlage, die überzeugt. Mit einer Gesamtwohnfläche von etwa 237,37 m², verteilt auf drei attraktive Wohneinheiten, bietet das Objekt ein solides Mietpotenzial und eine langfristige Wertstabilität.
Die Wohnung im Erdgeschoss mit einer Wohnfläche von rund 80,64 m² verfügt über eine moderne Einbauküche. Die Wohnung im Obergeschoss bietet etwa 83,68 m² und punktet zusätzlich mit einem einladenden Balkon. Im Dachgeschoss erwartet Sie ein charmantes Atelier mit Kamin und einer Wohnfläche von rund 70,57 m² – ein Highlight für gehobene Wohnansprüche.
Alle drei Einheiten sind mit Tageslichtbädern, Fußbodenheizung und Klimaanlage ausgestattet, was sowohl Bestandsmieter als auch zukünftige Interessenten überzeugt. Hochwertige Bodenbeläge aus Granit, Fliesen und Laminat verleihen den Räumen eine besondere Eleganz. Die 3-fach verglasten Fenster bieten ausgezeichneten Schallschutz und Energieeffizienz, während elektrische Rollläden zusätzlichen Komfort und Privatsphäre gewährleisten.
Aktuell ist die Immobilie vollständig vermietet und erzielt eine monatliche Nettokaltmiete von 2.580 Euro. Mit drei Stellplätzen direkt auf dem Grundstück und der guten Ausstattung ist dieses Haus eine sichere Investition in die Zukunft.
Profitieren Sie von der Kombination aus stabilen Mieteinnahmen und einer attraktiven Wohnlage. Vereinbaren Sie noch heute einen Besichtigungstermin und sichern Sie sich diese Gelegenheit.
Haustyp: Mehrfamilienhaus
Etagenanzahl: 2
Provisionspflichtig: ja
Provision: 3,57 inkl. 19% MwSt inkl. MwSt.
Nutzfläche ca.: 77,62 m²
Keller: voll unterkellert
vermietet: ja
Qualität der Ausstattung: normal
Baujahr: 1967
Mieteinnahmen p.a.: 30.960 €
Zustand: gepflegt
Heizung: Zentralheizung
Befeuerungsart: Flüssiggas
Energieausweistyp: Bedarfsausweis
Energieeffizienz-Klasse: E
Die Maklercourtage beträgt 3,57 % inkl. der gesetzlichen MwSt. von derzeit 19% aus dem Kaufpreis bei Nachweis Vermittlung dieser Immobilie, fällig und zahlbar bei notariellem Kaufvertragsabschluss.
Das könnte Ihnen auch gefallen
Chance für Kapitalanleger- Moderner Neubau!
Charmantes Mehrfamilienhaus mit Potenzial in Rastatt

Altay & Özcelik Immobilien
Frau Rana Altay/ Altay & Özcelik Immobilien
Scheffelstr. 65
76135 Karlsruhe
Büro: +49 721 844985
Mobil: +49 171 3163161
Fax: +49 721 853487
76774 Leimersheim
Germersheim
Rheinland-Pfalz
























